ユナイト株式会社|山梨の不動産相談、50歳からの住宅探し

【リノベーション戸建住宅】西八幡の家

リノベーション戸建住宅のメリット・デメリット

この家は、リノベーション戸建住宅です。
そのメリットは、
①新築物件よりも低コスト、②資産価値の下落が少ない、③固定資産税が上がらない、④資源の有効活用、などが考えられます。

①新築よりも低コスト
ウッドショックやインフレなどの影響で、新築住宅の価格が非常に高騰しており、ひと昔前では考えられない価格となっています。長期金利の上昇などを考えると、短期の変動金利も上昇に向かう可能性が高いと考えられ、このような状況下で大きな金額のお金を借りることは、非常に高リスクな選択に感じます。
土地を購入して新築住宅を建てる場合の、おおよそ半分以下の金額で、新築と同じような生活スタイルを実現できるのがリノベーション住宅です。
②資産価値の下落が少ない
木造住宅の耐用年数は、実は法定耐用年数と物理的耐用年数、そして経済的耐用年数とあります。
資産価値として目安にする「経済的耐用年数」は、一般的に25年(不動産会社が査定する場合は築25年で0円、銀行は担保価値を築20年で0円と考える)となります。
高額なハウスメーカーも超ローコストな住宅も、同じ目線で見るのは忍びないのですが、一般的な目線ではそのように見られてしまうのが現実なのです。
しかし、戸建住宅には土地があり、土地価格は極端な価格変動は少なく、山梨県内ではこの30年間ほとんど変動がありません。つまり、土地の価値はずっと先まで残るので、資産価値の下落が少ないということになります。
③固定資産税が上がらない
建築確認申請が必要なリノベーション工事でない限り、建物の固定資産税は変わらないケースがほとんどです。家屋の劣化や生活するために必要に応じて行う部分的なリノベーションなどは(年月が経つことで発生する補修)、一般的に固定資産税に影響しません。
④資源の有効活用
資源の有効活用とは、既存の建物を解体せず工事を行うことにより、廃材の発生が少ないからです。 スクラップ&ビルドの考えは高度成長のかつての日本の姿であり、人口減少の時代の現在では、環境にやさしい「リノベーション」がエコで環境にやさしい住宅であるといえるでしょう。

リノベーション戸建住宅のデメリットは、
①想定外の工事費用が発生しやすい、②工事期間が長く入居までに時間がかかる、③耐震や断熱、耐久性が心配などが考えられます。

①想定外の工事費用が発生しやすい
戸建住宅のリノベーションは、壁の内部や床下などの壊してみないと確認できないものがあります。蟻害や腐食がある場合を想定して見積もりをするのですが、被害が広範囲に及んだ場合は工事費用がかさむ可能性があります。
しかしながら、本物件のように、売主自らが改修工事を行い自らが販売をする場合は、そのようなリスクが無くなります。
②工事期間が長く入居までに時間がかかる
戸建住宅のリノベーションは、屋根や外壁など足場をかけて行う工事、外構などのカーポートや門塀などの外回りの工事、建物内部の水回り工事、内装などの仕上げ工事など新築並みに工程が多いため、工事の期間が結構かかります。工事の期間以外にも、中古物件のネット検索から始まり、中古住宅を購入(売買契約)⇒リノベーション業者の選定/決定⇒工事内容/仕上内容などの打ち合わせ⇒請負契約などと、考えるとかなりハードな内容を行うため、相当な期間と労力を要します。
しかしながら、本物件のように、売主自らが改修工事を行い自らが販売をする場合は、そのような長い時間をかけるリスクが無くなります。
③耐震や断熱、耐久性が心配
新築住宅と中古住宅で耐震、断熱、耐久性を比べることは、そもそも条件が違うものを比較することになってしまいます。
耐震も断熱も耐久性も、現状の状態をプロがチェックして、対費用効果でベストなものを提供しているのが今回の物件となります。

garage(ガレージ)

この家にはガレージ29.58㎡(8.94坪)があります。
ガレージの広さを畳数で言いますと17.89帖となります。
この広さのガレージは以下の魅力があります。
倉庫として:ガーデニング用品や工具などの室内に持ち込むには気になる物の収納に。
雨に濡れない:土砂降りの日でも雨に濡れるずに荷物の出し入れや車に乗れます。
自転車/バイク置場として:自転車やバイクの置場、濡れないので汚れないし壊れにくいです。
トレーニングスペースとして:「ジムに行かずに体を鍛える」いかがでしょうか。
作業スペースとして:DIYの作業や趣味の物のお手入れなどにも使えます。

売却理由

この物件ですが、もともとは、敷地面積150坪の大きな敷地に、木造住宅とガレージが2棟が建っている大きなお庭のある素敵なお宅で、ご夫婦と男の子の3人でお住まいをされていました。
その所有者は、親御様の介護をしなければならなくなり、甲府にある親御様の家の隣地に新築住宅を建てられて、現在はそこにお住まいをされています。
その所有者から土地建物を一括で購入をされた方は、神奈川県の藤沢市に本店があり、山梨にも支店がある「株式会社ビルドトラスト」で、本物件の売主となります。

売主は、購入した土地建物をおおきく2分割にしまして、南側の半分を土地分譲として販売。
北側の半分を土地付きのリノベーション住宅として再生しまして、今回の販売となっています。
もともとの所有者は、お子様がこの場所で健やかに育ったのでこの場所に愛着があり、また近隣の方々ととても親しく暮らしていたそうです。
小さなお子様がいるような家族には、本当に暮らしやすい場所ですと仰っておられたのが印象的でした。

配置

※画像をクリックすると拡大します。

配置図

室内写真

※画像をクリックすると拡大します。

1階

2階

ベランダ

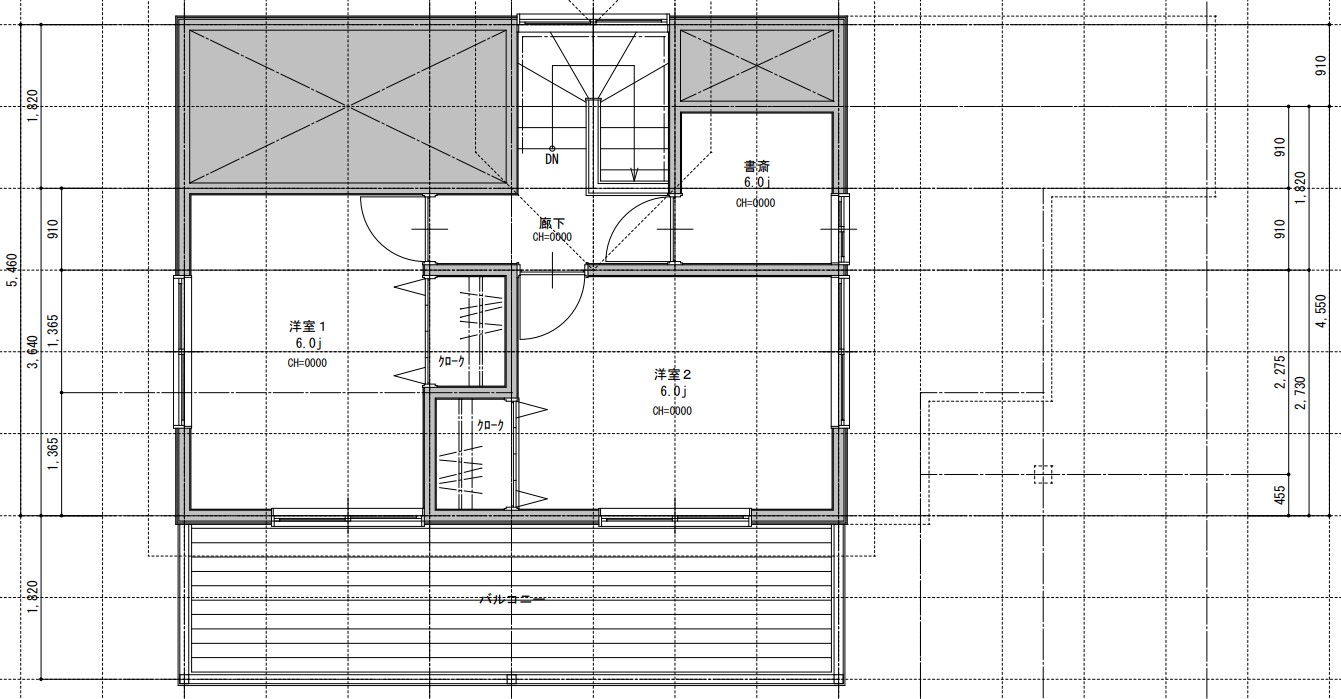
間取り

※画像をクリックすると拡大します。

1階平面図

2階平面図

外観

※画像をクリックすると拡大します。

居宅

ガレージ

玄関回り

リビング前のテラス

アプローチ

アプローチ2

水回り

※画像をクリックすると拡大します。

キッチン

洗面脱衣

居住環境(公園)

この物件があるエリアは、小さなお子様がいる家族にはとても嬉しい「公園」がたくさんあります。

※画面をクリックすると拡大表示します。

物件のすぐ近くの公園

釜無川スポーツ公園
物件から約650m(徒歩約9分)

西八幡公園
物件から約1,000m(徒歩約13分)

案内図

物件詳細情報

価  格:—-万円
消費税:販売価格は税込表示
土地面積:246.46㎡(74.55坪)公簿
建物面積:85.06㎡(25.73坪)公簿
1階床面積47.81㎡、2階床面積31.46㎡
ガレージ面積:29.58㎡(8.94坪)公簿
構造:木造スレート瓦葺き2階建て
築年数:1980年9月新築(築42年)
リフォーム:2023年3月
給水:甲斐市引込み20㎜、メーター13㎜
排水:本下水接続済
雨水:側溝に排水

建物工法:木造軸組み
基礎:コンクリート造基礎
外壁:モルタル吹付
建物熱源:LPガス

交通:JR中央線「竜王」駅2.0Km
小学校区:玉幡小学校900m(徒歩約12分)
中学校区:玉幡中学校1000m(徒歩約13分)
標高:約280m

都市計画:市街化区域
80 用途地域:第1種低層住居専用地域
埋蔵文化財申請:無
建蔽率:50%
容積率:80%
ハザード:0.5m~3mの浸水エリア
>甲斐市ハザードマップ
土地権利:所有権
私道負担:無
地目:宅地
地勢:平坦
接道:東側4.5m~5m道路(認定幅員)
引渡:相談
取引態様:一般媒介
固定資産税/都市計画税:31,500円/年
仲介手数料:掛かりません
情報公開日:2023/5/3

公図

確定測量図