ユナイト株式会社|山梨の不動産相談、50歳からの住宅探し

【古民家】大久保の家

物件案内図

ロケーション

その家は、甲斐市北側にある「双葉高原団地」の東側、「敷島団地」の西側にあります。
大久保と呼ばれる旧農家住宅の集落エリア内で、ひときわ大きな敷地と建物を配した古民家です。
集落の入り口部分に在ることから、豪農と呼ばれる富裕農家であったと推察ができ、この集落の代表格の雰囲気を漂わせております。

この家の北側約100mほどの先には「子神社(ねの神社)」があります。
子神社の例祭は、190年以上の歴史があります。氏子の人々によって受け継がれてきた伝統芸能であり、甲斐市の無形民俗文化財にも指定されています。

※写真をクリックすると拡大表示します。

物件配棟図

交通

交通手段ですが、JR中央線「竜王」駅までは約4㎞(車約10分)と近い距離です。
また、中央自動車道スマートインター(東京方面入口)にも約3㎞(車約7分)と近い距離となっております。
中央自動車道は双葉ジャンクションで中部横断自動車道につながっており、静岡県の新清水まで対面通行ですが2021年8月に開通をしています。

※写真をクリックすると拡大表示します。

物件配棟図

この家の魅力

その一、敷地の広さ
敷地のひろさは、なんと2,102㎡(635.88坪)もあります。
この広い敷地内に、木造2階建ての母屋339.9㎡(102.81坪)と土蔵づくりのお蔵27.66㎡(8.36坪)、そして2階建ての未登記の鉄骨造の倉庫99.36㎡(30.05坪)が配置されています。
その二、2方向の道路
この家の接道は、南側が幅員4.5m~5.5mの甲斐市認定道路。
また、北側にも幅員2.8m~3.0mの甲斐市認定道路(建築基準法上の42条2項道路:再建築の場合はセットバックが必要な道路)があり、2方向からのアプローチができます。
母屋の北側は、以前は作業場やお蔵などの建物がありましたが、現在はそれらの建物は解体をして更地になり、コンクリートの敷き込みと菜園スペースになっています。
その三、本格的な書院づくり
1階には、10帖+10帖の本床と書院のある和室、8帖+7帖の前室を配したお座敷があります。
そのお座敷を、ぐるりと四方を囲むように、広縁と廊下が設えてあります。
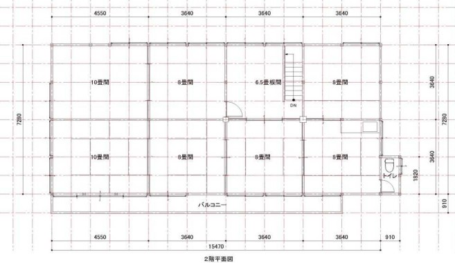
2階には、10帖+10帖+8帖+8帖の和室が南側に一列に配置され、同じ並びで一列に北側にも10帖+8帖+6.5帖と階段+8帖の和室が並んでおります。
その四、お手入れの状態
実際にこの家を内見をして頂くと分かりますが、家の隅々まで、お手入れが行き届いております。
これだけの広さの建物を、この状態で維持をしているのは、相当な費用とこの家に対する愛情が無いとできません。
実際に人が住まなくなって10年ほど経過していますが、空き家独特のにおいも感じません。

市街化調整区域内の条例指定区域

この家があるエリアですが、市街化調整区域内の条例指定区域となります。
その内容は、第1種低層住居専用地域の用途に準ずる区域となります。
2024年度から、甲斐市が一部の運用変更したことにより、以前の状態では専用住宅以外は難しかった用途が、事前に甲斐市との協議が必要ですが、事業用の用途にも可能性が見えてきました。

売却理由

この家の前所有者は、女性の方でした。
ご主人を亡くされたあともお一人でお住まいになっており、日本舞踊をされていたので、倉庫の2階を改修してお稽古場として使っていたとのことです。
前所有者にはお子様が居なかったため、すぐ近くに屋敷を構えている傍系の親族である現所有者夫婦が養子となり相続をされ、前所有者が亡くなられた後も大切に管理をしていました。

しかし現所有者も高齢になり、草刈りなどの維持管理が肉体的に厳しく、また現所有者には自己所有の自宅や経営する店舗もあり、実子も嫁いで居を構えているため、財産として残しても維持できない判断しまして売却をすることにしました。

公図

上水道管路図

間取り

※写真をクリックすると拡大表示します。

母屋/1階平面

※写真をクリックすると拡大表示します。

母屋/2階平面

母屋の内部

※写真をクリックすると拡大表示します。

玄関引き戸

玄関ホール

玄関ホールから広縁

和室前室

和室本床

2階南側つづき間

2階南側つづき間

北側つづき間

内観写真LDK

別棟内観

案内図

住居表示:甲斐市大久保279

建物外観写真

※画像をクリックすると拡大します

建物の南側からの外観

建物の北側からの外観

建物の北側の駐車スペースと菜園スペース

物件詳細情報

価  格:—-
※個人が売主なので消費税は非課税
土地面積:2,102㎡(635.88坪)公簿
建物面積:339.9㎡(102.81坪)母屋
附属建物:お蔵(土蔵造瓦葺平屋建)
⇒27.66㎡(8.36坪)
未登記建物:2階建ての倉庫(鉄骨造)
⇒1階49.08㎡、2階49.08㎡
延床面積99.36㎡(30.05坪)
母屋構造:木造瓦葺2階建て
母屋耐震:旧耐震
母屋築年数:不詳、概ね築150年
土地権利:所有権
地目:宅地

水道:甲府市上水道、給水本管100㎜
引込口径25㎜、メーター口径20㎜
排水:浄化槽
熱源:非都市ガス

交通:JR中央線「竜王」駅北口迄4.5㎞
(車にて約10分)
交通:中央道スマートインター東京方入口迄
3.2㎞(車にて約7分)

都市計画:市街化調整区域
用途地域:無指定(条例指定区域)
埋蔵文化財申請:該当なし
建蔽率:60%
容積率:200%%
私道負担:なし
地勢:南雛壇
接道:南道路、甲斐市天狗沢大久保線、認定幅員4.5m~5.5m
接道:北道路、甲斐市道牛句大久保線、幅員2.8m~3.0m
※建築基準法42条2項道路(要セットバック)

ハザード:該当なし
現況:空家
引渡:相談
固定資産税:確認中
取引態様:専任媒介
仲介手数料:—-円(税別)
情報公開日:2024/7/16